
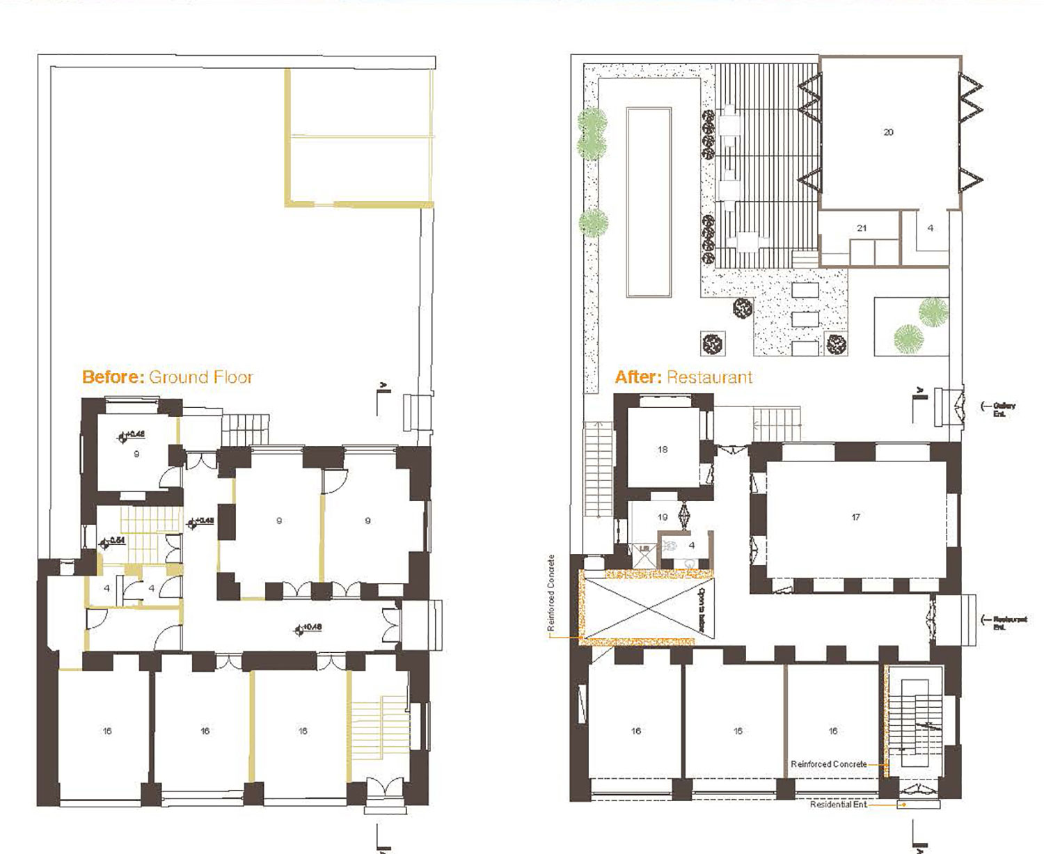
خانه آقای لولاگر اولین خانه از مجموعه ای شش تایی از بناهایی است که متعلق به دوره رضاشاهی است که در خیابان نوفل لوشاتو قرار دارد. در سال 1390 بنای شمال شرقی جهت مطالعات، طراحی و اجرا به این مشاور واگذار شد. این بنا دارای تمام شاخصهای سبکی دوره خود بوده و فضاهای داخلی فاقد هرنوع تزئینات می باشد و با وجود طراحی آزاد پلان دارای شاخصه های سبکی بسیار با اهمیت نبوده است. در طراحی مرمتی این بنا سعی شده تا در پوسته خارجی رویکردی حفاظتی در پیش گرفته شود و در بخش های داخلی با بیانی مدرن ضمن حفظ ساختار کلی فضا نقاط ضعف سازه ای و تاسیساتی بنا برطرف شده . باچنین رویکردی دو طبقه بالا عملکرد مسکونی اختصاص داده شد و طبقه همکف به عملکرد رستوران و طبقه زیرزمین به فضای نمایشگاهی تبدیل شد.














Go to top