خانه
درباره ما
پروژه ها
بلاگ و مجله
تماس با ما
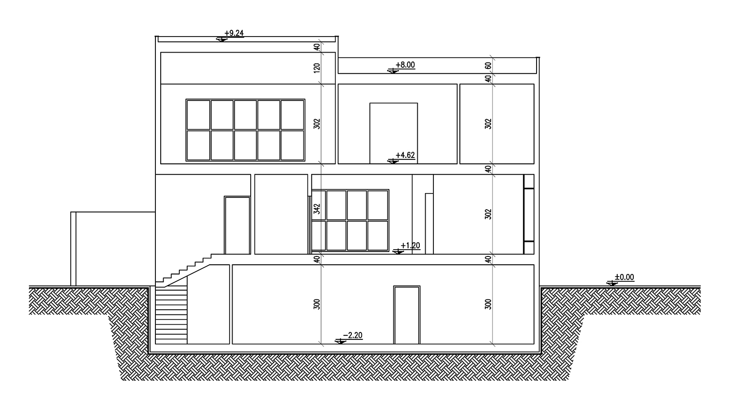
طراحی ویلا رفسنجان
(کوچک (کمتر از 1000 مترمربع / 1391-1395 / طراحی شده / مسکونی
ویلا رفسنجان
اطلاعات نقشه ها
پلان زیرزمین
پلان همکف
پلان طبقه اول
مقطع
مقطع
سه بعدی پروژه
Go to top